THE BUBBLE HOUSING
Academic Project
The Barras, Glasgow, UK / 2020
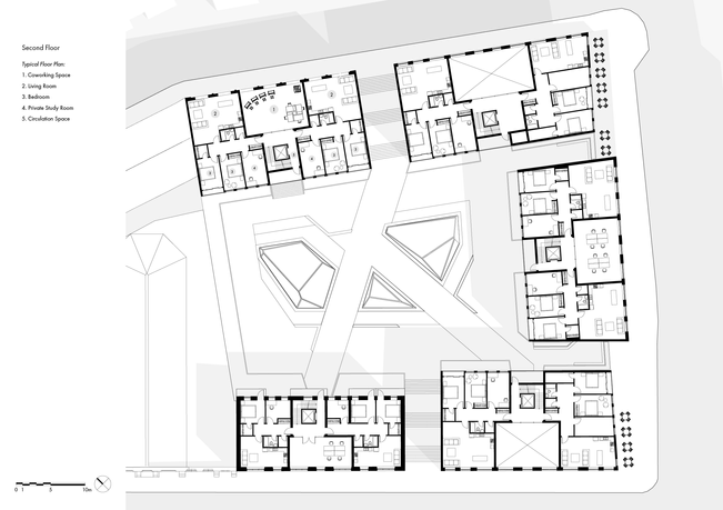
The 2020 COVID-19 pandemic cardinally changed our lifestyle. The implemented social distancing regulations compelled people to move to remote working and studying and give up most recreation and socialization activities in fear of getting infected. Lack of live communication and exercise, and the necessity to combine working with childcare and household duties inevitably lead to emotional stress and increase the risk of mental health problems. Moreover, most contemporary households may not possess the infrastructure, that would generate an environment for efficient remote working, especially among “back office” employees and creative workers, such as designers, programmers, media producers, etc. School children and people without good IT knowledge can face difficulties of poor infrastructure provision. Recent studies from open sources show, that 40% of employees had to invest in their personal tech upgrades after moving to remote work. This factor becomes especially important, as most of Calton & Bridgeton’s neighbourhoods are in the 20% most deprived zone.
However, despite all the negative aspects listed above, plenty of employees showed interest in the provision of more opportunities for working at home, while remote studying for all age groups becomes more common. The aim of my proposal is to face these major challenges by creating an autonomous bubble accommodation unit, where young economically active people and their children would be able to combine living with working, studying and recreation. The proposal reiterates Victorian Glasgow tenement housing composition for a more successful response to contemporary lifestyle and demands. Using the 15-minute city theory in studying of Calton & Bridgeton neighbourhood and scaling it down to one housing block, my proposal apart from flats with necessary working space accommodates specialized coworking areas for residents with provided equipment, commercial spaces on the ground floor and childcare, public learning, sports and outdoor amenities in the top floor.

← Return

More Projects
































