THE CELL
Academic Project
Site Unspecified / 2020
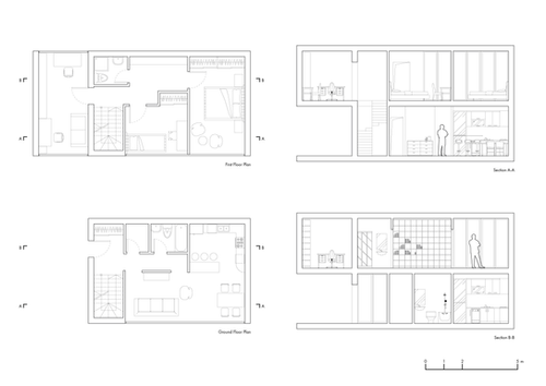
A 1-week project, which investigates the relationship between space of individual and collective exploitation, which creates a comfortable living and working neighbourhood environment for contemporary creative employees (e.g., startups, freelancers, designers, IT & media programmers), who can build a healthy community and relation culture and maintain successful work-life balance.
A single unit is composed of four two-floor dwellings, that can accommodate up to three people and provide private working space in special loggias, located on the first floor. Allocated in a rectangular pattern, flats form a unit with an atrium coworking space, where residents could do group work, share infrastructure and socialise. The units can both be kept as single houses or consolidated into multistorey buildings, where additional elevators and staircases can provide necessary circulation between floors. Separate access points for each flat allow to minimise residents’ interaction in circulation areas and hence maintain the necessary proportion of privacy and publicity in multifunctional dwellings.
← Return

More Projects




















